岩棉板外墙外保温系统
可行性研究报告
【北安·瑞鑫大厦】
黑河市银河保温材料有限责任公司
【工程案例】
大庆:

大庆奥林幼儿园

大庆奥林学校

大庆龙南医院
长春 万科城
17#楼:41层

注:万科城 17#楼 1-20层及刷涂料处为去年做的岩棉板外墙保温,经过近一年的冷热变化和大风雨雪的冲击,未出现开裂、渗水现象。
黑河市银河保温材料有限责任公司
《厂区鸟瞰效果图》
成立于2010年11月22日,坐落于黑龙江省黑河市爱辉区瑷珲对俄进出口加工基地,本企业主要从事岩棉板的生产和销售,本公司是 集设计、施工、加工、安装、经营于一体的经济实体,拥有国内先进的岩棉设备和岩棉板制作工艺并配备有安装施工、管理的优秀人才。 公司专业从事 岩棉系列:岩棉管、粒状棉、岩棉板、岩棉毡。等产品。可根据客户要求:“量身定做”做到科学设计,合理施工。 公司以客户为中心,以高新技术为先导,保持与国际先进技术同步发展,严把产品质量关,使我们的各类产品畅销全国,广泛用于供热,建筑,石油、电力、化工、冷藏、船舶,航天、冶炼、中央空调等行业,产品质量在同行中处于领先地位,并得到相关部门的认可和广大客户的一致好评,信誉卓著!
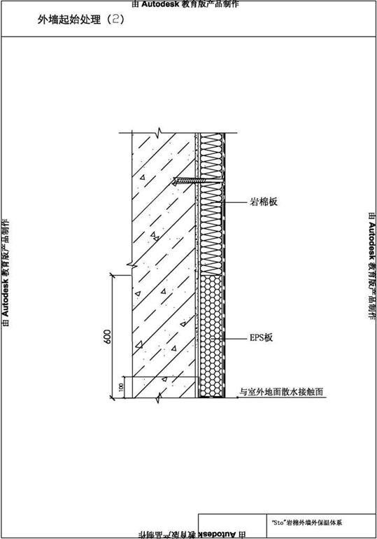
外墙外保温岩棉板:作为防火保温材料主要应用于外墙外保温薄抹灰系统和干挂幕墙保温系统中,具有良好的抗压和抗拉拔强度,优异的憎水和防潮性能,适用于各种砌体或混凝土等密实结构的基层墙体。既可以用于新建、扩建墙体的外保温,也可用于既有建筑的外墙外保温节能改造。A1级不燃的防火等级和较高的抗高温收缩能力,可在火灾发生时保持系统结构的稳定。
注:岩棉外墙外保温薄抹灰系统应用时,应尽量避免使用瓷砖、高弹性涂料等不透气的饰面材料,以充分发挥岩棉的透汽性能,避免建筑霉变、结露。
SunWool岩棉外墙外保温系统
实
施
方
案
编制单位:黑河市银河保温材料有限责任公司
编制时间: 2012 年 6月
一、“SunWool岩棉板”外墙外保温系统构造及组成材料性能
A、系统构造
1 2 3 5 6 5
4

1.
基层墙体
2.
SunWool建筑粘胶(底胶)
聚合物改性的水泥干拌灰,专用于岩棉板的粘贴
3.
SunWool岩棉板
A级不燃
导热系数≤0.040 W/m .K
4.
SunWool盘形锚钉
盘型锚钉打在岩棉板上(第一层玻璃纤维网格布内)。
5.
SunWool防护砂浆(面胶)
无机干粉类抹面胶浆,与玻纤网格布共同组成外保温系统的防护层
6.
SunWool双层玻纤网格布
B、本工程系统及主要组成材料性能
1.1 “SunWool岩棉板”外墙外保温系统
表1 “Sto岩棉板”外墙外保温系统的性能指标
|
试 验 项 目 |
性 能 指 标 |
|
|
吸水量,g/m2,浸水24 h |
≤
500 |
|
|
抗冲击强度,J |
普通型 (P型)
|
≥
3 |
|
加强型 (Q型)
|
≥
10 |
|
|
抗风压值),kPa |
不小于工程项目的风荷载设计值,抗负风压安全系数≥ 1.5 |
|
|
耐冻融 |
表面无裂纹、空鼓、起泡、剥离现象。防护砂浆与岩棉板之间的拉伸粘结强度≥80kPa,或断裂在岩棉板内 |
|
|
水蒸气湿流密度,g/(m2 ·h) |
≥ 1.2 |
|
|
耐候性 |
表面无裂纹、粉化、剥落现象。防护砂浆与岩棉板之间的拉伸粘结强度≥80kPa,或断裂在岩棉板内 |
|
注:SunWool岩棉外墙外保温体系动态抗负风压检测结果为8kpa没破坏(因设备原因检测并未进行至系统破坏)。
1.2 SunWool建筑粘胶
SunWool建筑粘胶的性能指标应符合表2的要求。
表2
Sto建筑粘胶的性能指标
|
试 验 项 目 |
性 能 指 标 |
|
|
拉伸粘接强度,MPa (与水泥砂浆) |
原强度
|
≥ 0.60 |
|
耐水
|
≥ 0.40 |
|
|
拉伸粘接强度,kPa (与岩棉板) |
原强度
|
≥80kPa,或破坏在岩棉板内 |
|
耐水
|
≥80kPa,或破坏在岩棉板内 |
|
|
可操作时间,h
|
1.5 ~ 4.0 |
|
1.3 SunWool 岩棉板
厚度100mm 容重125 抗拉伸 10
1.4 SunWool防护砂浆
SunWool防护砂浆的性能指标应符合表5的要求。
表5 SunWool 防护砂浆的性能指标
|
试 验 项 目 |
性 能 指 标 |
|
|
拉伸粘接强度,kPa (与岩棉板) |
原强度 |
≥80kPa,或破坏在岩棉板内 |
|
耐冻融 |
≥80kPa,或破坏在岩棉板内 |
|
|
耐候性 |
≥80kPa,或破坏在岩棉板内 |
|
|
抗压强度/抗折强度 |
≤ 3.0 |
|
|
可操作时间,h
|
1.5 ~ 4.0 |
|
1.5 SunWool玻纤网格布
SunWool玻纤网格布的主要性能指标应符合表6的要求。
表6
Sto玻纤网格布主要性能指标
|
试 验 项 目 |
性 能 指 标 |
|
单位面积质量,g/m2 |
≥ 130 |
|
耐碱断裂强力(经、纬向),N/50mm |
≥ 750 |
|
耐碱断裂强力保留率(经、纬向),% |
≥ 50 |
|
断裂应变(经、纬向),% |
≤ 5.0 |
1.6
SunWool 盘形锚钉
采用表面镀锌处理的35号钢制成的金属螺钉及带圆盘的塑料膨胀套管,不得使用回收的再生材料。SunWool盘形锚钉有效锚固深度应不小于50 mm,塑料圆盘直径为50 mm。其技术性能指标应符合表7的要求。
表7
Sto盘形锚钉技术性能指标
|
试 验 项 目 |
技 术 指 标 |
|
单个Sto盘形锚钉抗拉承载力标准值,kN |
≥ 0.40 |
|
单个Sto盘形锚钉对系统传热增加值,W/(K·m2) |
≤ 0.004 |
三、系统特点
“SunWool岩棉”外墙外保温系统的构造与组成材料在国外特别是欧洲已有三十多年的实践历史,并有完善的标准。在德国,系统执行欧洲ETAG 004《有抹面层的外墙外保温复合系统欧洲技术认证标准》,岩棉执行德国外保温协会《外墙外保温系统用岩棉质量标准》,此标准为外保温专用岩棉标准,高于欧洲岩棉工业标准。
由于岩棉具有防火A级不燃且火灾情况下体积稳定不变形、导热系数低(为所有无机A级防火等级保温材料中导热系数最低)、优越的隔音及隔热性、以及最佳的透汽性等特点,岩棉在德国外墙外保温领域已占到15%以上的使用量(82%为EPS板),应用于岩棉薄抹灰外保温系统、幕墙(保温)系统、以及在EPS板薄抹灰外保温系统中作为防火构造措施用,安全性有保障,特别适用于节能要求高、防火要求高的地区和建筑。
四、施工技术方案
1、编制依据
《外墙外保温建筑构造》(10J121)
《外墙外保温工程技术规程》(JGJ144-2004)
《建筑装饰装修工程质量验收规范》(GB50210-2001)
《建筑工程施工质量验收统一标准》(GB50300-2001)
《建筑节能工程施工质量验收规范》GB50411-2007
大庆油田研究院食堂图纸设计要求
“SunWool岩棉”外墙外保温系统施工技术要求
2. 施工条件
对建筑物及基层墙体的基本要求
1)
施工及施工后的24h内的环境、基面及使用的材料的温度不应低于+5℃;
2)
内墙抹灰、混凝土或水泥砂浆地坪应在外保温系统施工之前完成,并已干燥硬化;
3)
墙体应具有足够的强度,特别是墙体表面应具有足够的附着力(≥0.3Mpa),不允许有开裂、空鼓情况;
4)
墙体的垂直度、平整度必须符合国家相关行业规范要求,基层的平整度≤4mm/2m靠尺;
5)
门窗框,水平设置的盖板(如窗台板,女儿墙盖顶板),必须在外保温系统施工之前安装完毕。外墙面设置的护栏,固定管道、空调等用的支架也应预先安装完毕;
6)
所有水平方向的构件(如挑檐、窗台板,女儿墙盖顶板、固定外墙面构件用的支架等)都需要考虑外保温体系所需要的施工厚度,并做到必要的滴水处理或防锈处理;
7)
门窗,室外(门窗的)卷帘,特别是水平设置的盖板(如窗台板,女儿墙盖顶板), 必须在外保温体系施工之前完成,外墙上的门窗框要安装完成,并且做好收口。与外墙面连接的护栏,不能在外保温施工完后再在外保温墙面上挖洞装护栏,固定雨落管道等用的支架也应预先安装完,并且所有以上这些均需考虑外保温体系的厚度;
8)
自来水管、煤气管、空调进出口及各种进户管线等所有进出外保温外墙面的管线均需预埋PVC套管,PVC套管伸出墙面的长度至少应为外保温系统的厚度;
9)
每栋楼需具备充足的水、电接口,并能正常使用。
3、施工准备
3.1施工材料准备
项目使用的体系材料可分多次进场,进场的材料数量以不影响现场正常施工为原则。
外地采购的材料可分多次进场,根据使用量,提前一周预估下次进场材料量。本地采购的材料,以不影响现场正常施工为原则。
岩棉材料运输及管理:
l 岩棉需整齐堆放,要求地面保持干燥;
l 距离地面200mm左右平坦堆放,避免直接与地面接触;
l 堆放高度不超过3m,加盖薄膜、防潮防尘;
l 不可长期承受外压,避免任何人为践踏、磕碰。
其他材料现场堆放及管理
材料进场后,必须堆放在干燥、通风的环境;做好防潮、防雨措施;严禁踩踏、随意堆放。材料分类堆放整齐,并做好标识,并设专门的材料员进行管理,材料员做好材料进出场记录及每日材料进出记录,以随时掌握工程量及材料库存状况,项目管理人员根据材料使用状况,提前2周(岩棉提前1个月)提出进料计划,保证工程施工和材料供应的紧密衔接。
3.2施工机具的准备
外墙外保温工程专用施工工具清单:
|
专用工具名称 |
用途说明 |
|
发泡胶专用**(选用) |
发泡胶施工工具 |
|
折角抹灰刀 65X65mm |
建筑物阳角抹灰工具,制作防护层时使用 |
|
搅拌器 |
搅拌建筑粘胶 |
|
狼牙锯、美工刀 |
现场切割岩棉板、网格布之用 |
每三人需配备:折角抹灰刀 65X65mm一把
不锈钢抹灰刀 280X130X
抹灰抄板一把
铝靠尺一根
狼牙锯一把
美工刀一把
以及木工、瓦工的通用工具(卷尺、线垂、墨斗、铅笔等)。
注:搅拌机和发泡胶专用**等可以各组通用。
3.3. 施工技术准备
与建设方、监理及总包方交底外保温施工前土建应具备的条件,以及与门、窗、管线等工种的交叉施工配合问题,以使工地尽早具备外保温工程施工的条件。
与建设方、监理及总包方对本工程图纸进行会审,对图中细部处理节点进行进一步研讨,修改并最终形成施工节点图,供指导现场施工,和施工验收。
根据甲方批准的材料品牌、型号进行订购,按工程进度分批进场,在进场时报请监理校验,并作好记录,同时提供材料的合格证、出厂合格证、质保书,在施工前提交工程验收所需要的所有技术资料,如材料说明书、施工规程等。
对现场施工人员进行施工培训,做好技术、安全交底,并做好纪录。
4、外保温施工工艺
外保温部分施工工艺流程:

岩棉双网施工工艺
4.1. 基层处理
1.1 基层墙体不得有妨碍粘结力的粉尘、油污等存在,相关的预处理方法见下表:
|
基层墙体的缺陷 |
措施 |
|
潮湿 |
找出原因,切断潮源,等待全干 |
|
有粉尘或污迹 |
清扫或用蒸汽喷**清洁 |
|
表层起鼓,爆皮 |
基层修补 |
|
砂浆残块 |
打掉 |
|
表面呈烧结状 |
用机械法清除之 |
|
有油斑 |
先后用洗涤剂溶液和自来水清洗 |
|
表面过光滑 |
打毛 |
|
抹灰层空鼓 |
打掉空鼓,用石灰水泥砂浆修补 |
|
抹灰层起灰 |
清扫,刷底涂 |
|
表面起砂 |
清扫并刷底涂(加固) |
4.2. 吊线、弹线
在墙体转角两个互相垂直的墙面上及其它必要处挂垂直基准钢丝线,然后在每贴一排岩棉板时拉横线,以控制岩棉板面的平整度及阳角的垂直度。
在外保温起始标高线沿墙身一周弹水平墨斗线。
4.3. 岩棉板的固定
考虑到本工程地理位置、风压和高度,为了保证系统的连接安全性,建议岩棉板最小粘贴面积为60%。
点边粘贴:平整度在超过5mm/2m时(但不大于10mm/2m,否则需要找平抹灰),必须使用点边粘贴法。施工时首先用抹灰刀沿岩棉板周边将粘胶均匀地涂到岩棉板边缘上,然后在板面上再均匀地分布六至八个粘胶点 (图片2)。粘胶的涂抹厚度视墙面的平整度确定。墙体表面平整度越差,涂抹越厚。

图片1:整面粘贴 图片2:点边粘贴
将涂抹好粘胶的第一排岩棉板按照正确位置摆放,然后将岩棉板紧密地粘贴在墙面上,注意防止岩棉板的下坠(采取用木条或支架的方式加以固定),岩棉板周围挤出的粘胶必须立即刮掉,以保证粘贴下一块岩棉板时板缝中不会嵌入粘胶。(图3)

图3 粘贴岩棉板
图4 阳角搭接处的粘胶应刮掉

图5 用压板压挤岩棉板面至一样平齐
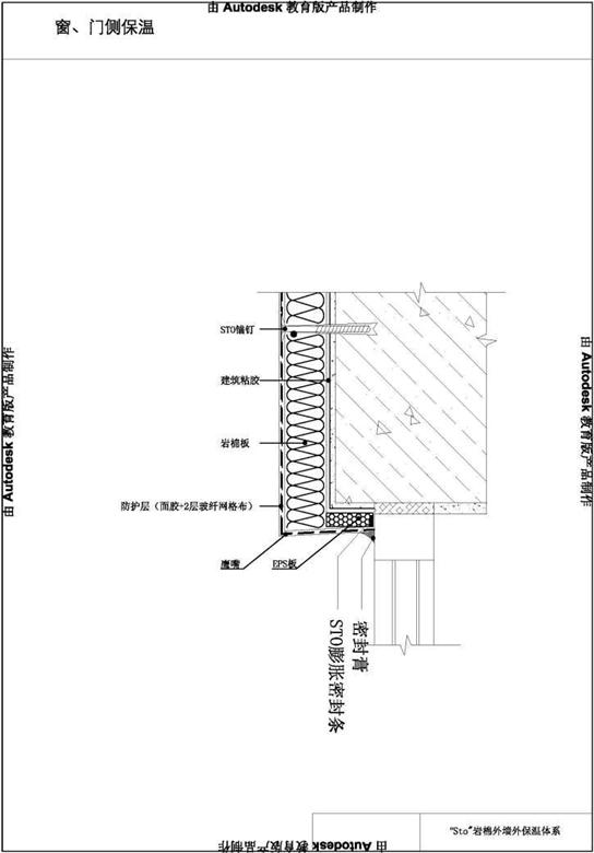
图6 窗侧贴板应遵守大面压小面的原则

图7:门、窗开口处不得出现板缝
注意事项:
Ø
涂抹粘胶时应保证岩棉板四个侧端面上没有粘胶。
Ø
条粘贴时,胶条应呈水平方向。要注意方齿边抹灰刀拖刮的角度不得过平,以避免粘胶的涂抹厚度过薄。
Ø
需保证最低粘贴面积达到设计要求。同时也要注意周边粘胶的涂抹厚度,以保证整个周边粘牢。
Ø
切割岩棉板时必须保证边角整齐。

(图9)发泡胶填充 塞岩棉板条

图10
切除阳角多余部分的岩棉板
图11 切割好后阳角用压板压平整
保温层允许偏差
|
项次 |
项目 |
允许偏差 |
检查方法 |
|
1 |
表面平整度 |
4 |
用2m靠尺和塞尺检查 |
|
2 |
立面垂直度 |
4 |
用2m托线板检查 |
|
3 |
阴阳角方正度 |
4 |
用2m托线板检查 |
|
4 |
接缝高低差 |
1.5 |
用钢直尺和塞尺检查 |
|
5 |
接缝宽度 |
1.5 |
用钢直尺检查 |
4.4. 板缝处理与板面修整
4.5安装锚钉、砂浆找平
|
墙体材料 |
第一个钉离墙边的距离 |
|
混凝土 |
|
|
砌块 |
|
4.6. 防护面层

图12 门窗开口处侧面增强处理

图12 门窗开口处的斜向增强处理
图13玻纤网格布之间应搭接10cm
注意:
对于岩棉双网系统,第一遍网格布铺设时,网格布之间、网格布和包角网、门、窗洞口的加强网之间只需要对接,无需搭接。
4.7铺设第二遍网格布
5.干挂背通风外墙保温系统
5.1 干挂背通风外墙保温系统是专门为干挂石材、玻璃幕墙等外墙干挂的外保温体系。
在干挂骨架的空腔內的墙体上粘贴保温层,以传统水泥基增强防护层,利用外保温与干挂饰面之间的通风式空气隔层将热湿空气及时排走,在墙体的保温同时,保证了墙体与保温材料始终处于干燥状态,并可良好的改善了墙体隔音
5.2 干挂背通风外墙保温系防护层统采用一布两涂(面胶+网格布+面胶)
5.3 见附件干挂石材节点。
五、质量目标及技术组织措施
1、质量目标
1.1每道工序合格率100%,返工率小于5%
1.2工程总体达到优良等级
2.质量管理措施
2.1 施工协调工作
在工程进入连续施工阶段时,拟定每周召集一次施工协调会议,解决上一周遗留的问题,对业主、监理、总包方提出的批评作出整改措施。
2.2凡本工序存在的质量问题在本工序内解决。
施工人员上工前须得到详明技术交底,依施工节点图纸、施工操作规范和现场的情况施工。
![]()
![]()
2.3技术交底程序:项目工程师 质量员 各班组长 各施工人员。
2.4全员参与工程质量管理,各施工人员有权对操作方法、施工程序等提出自己的意见,由班组长、质量员汇总,经技术负责人、工程方认可后实施。
2.5各班班组长负责安排班组人员的实际操作部位和技术交底,带领本班组人员在劳动定额内以好、快、省、安全地完成项目工程。
2.6班组项目工程在进入下一道工序前实行自查互查和管理层查验制度,查验合格后方可进行下道工序施工。项目部位施工人员质量存在屡纠不改的现象,各班班组长有权勒令该施工人员无薪返工;全班组施工项目部位质量验收不合格,质量员有权勒令该班组全员返工。各施工人员须于开工前或者工余自备工具,因工具不全,无良好状况造成的窝工、扯皮,由各施工人员自负责任。
2.7在项目施工中,以排除重大工程质量及防火安全事故隐患、积极上进,在员工中起模范带头作用,提出建设性建议,或在材料使用中换回失窃、流失、损失,成绩显著者,给予嘉奖。
3.
质量保证技术措施
3.1 认真学习和会审施工图纸,并做好逐级技术交底工作;
3.2 严格按照施工验收规范和操作规程,加强分部、分项工程质量评定工作;
3.3 坚持按图施工,如有变更必须征得甲方同意;
3.4 接受质检部门和甲方各有关部门及监理对施工现场的监督,发现问题及时解决,直至达到质量要求;
3.5 质量薄弱环节及控制措施
4、防止质量通病的措施
4.1防护层开裂
4.2外墙渗漏
4.3在常温下,防护层干燥至少1天后才可进行涂料饰面层的施工。低温及高湿环境下干燥时间会延长
六.环境保护、文明施工
1严格对待各项法律法规,加强本工程文明施工管理,维护城市市容整洁和城市安全。
2配合好业主、建设单位、质检、设计院等单位。
3材料进厂后按平面布置图整齐排放,保持现场整洁。
4在施工过程中,设专人对现场成品看护。各专业队互相配合,严禁破坏其它工种的成品及半成品。做好每日工序落手清考评,做到谁做谁清,工完料清,物尽其用,废料归堆。减少材料浪费,利用有效防护措施,防止施工中产生的场的施工文明的有关规定,对工地人员进行文明施工及环保教育。废弃物、杂物飘散。
5严格禁止打架斗殴。
6安全员进环境,在每个楼层设垃圾桶,每天派专人清扫,对于现场施工垃圾每天定时清理。严禁随地大小便,违者罚款。
7工地及住地均要搞好团结,注意卫生,不要高声喧哗。
8后勤部门对食堂作经常性卫生检查,做好防止集体食物中毒预防工作。定期检查工行文明施工及环保工作的检查、监督,`使施工人员养成良好文明习惯。
9搞好周围作人员健康,做到持证上岗。


















